BOV
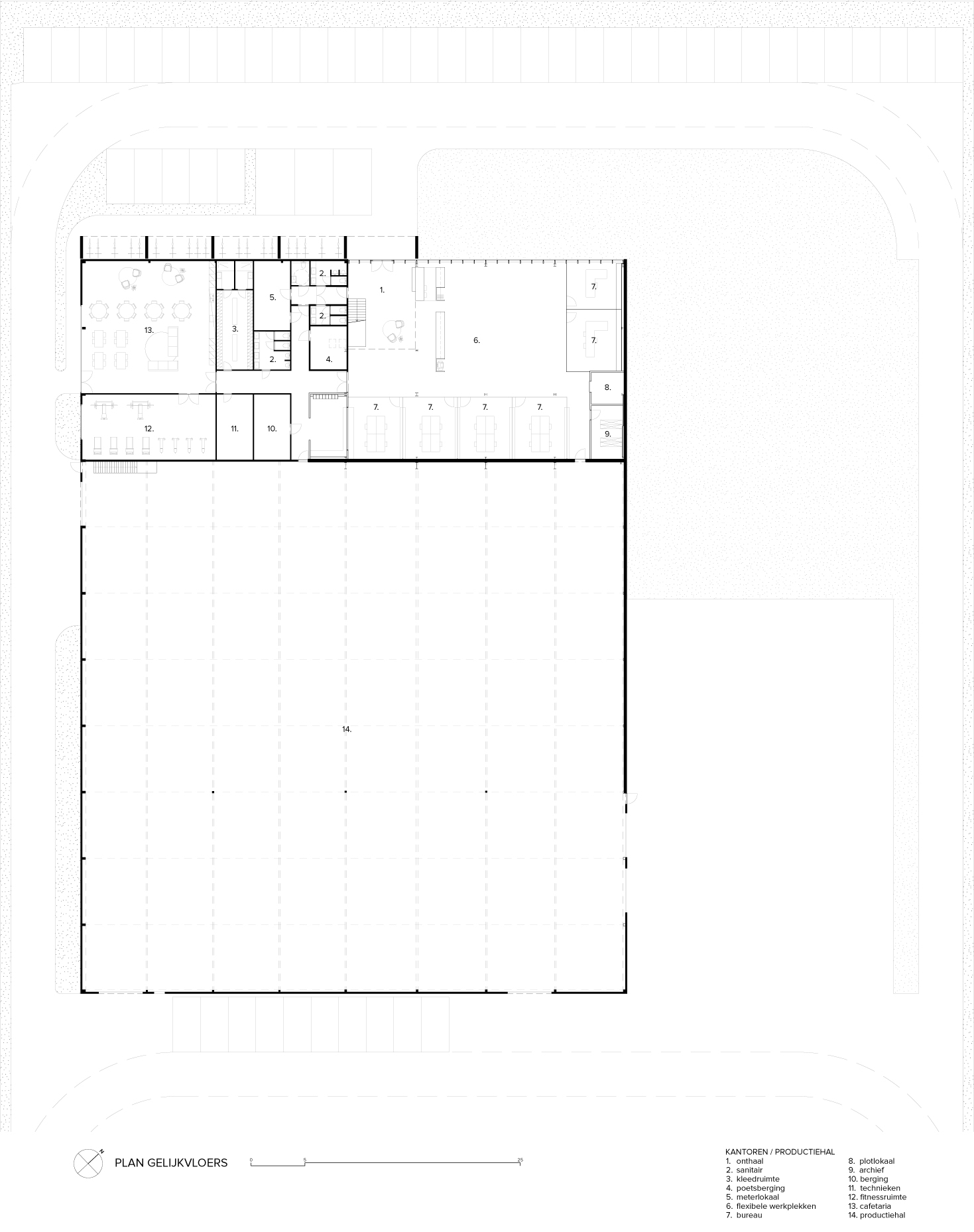
Aluminiumspecialist Boven Yvo neemt zijn intrek in een gloednieuwe productiehal met kantoren en showroom. De nieuwe vestiging optimaliseert de bedrijfsprocessen en biedt kwalitatieve werkplekken aan de werknemers.

Om een zich onderscheidend gebouw neer te zetten, hebben we de klassieke compositie van industriële panden in vraag gesteld. Het resultaat is een helder en dynamisch volume dat zich afzet tegen de typisch statische blokkendozen. De hal draagt het vernieuwende imago van het bedrijf moeiteloos uit.
De showroom op de verdieping is georganiseerd rond een patio die dienst doet als beleving- en ontmoetingsruimte. Strategische doorzichten naar de hypermoderne productiehal stellen het vakmanschap tentoon, de verbinding met het cliënteel staat centraal.









Ontdek het volgende project
VER
Victor Snyers
Studeerde in 2024 af aan de Universiteit van Antwerpen departement architectuur. Loopt nu stage bij G2architecten.
Anne-Lies Torfs
Studeerde in 1997 af aan het Henry Van De Velde Instituut te Antwerpen. Liep stage bij Jo Crepain Architects. Van 2000 tot 2021 was zij projectarchitect bij Christine von der Becke Architects en Nathalie Van Reeth Interieurarchitect.
Sinds 2022 medewerker bij G2architecten. Met ruime ervaring en bijzondere voeling voor interieur en fotografie ondertussen van onschatbare waarde.
Sarah D’Hooghe
Studeerde in 2006 af aan het Henry Van De Velde Instituut te Antwerpen. Liep stage bij Gregory Gebruers architect en stond later als vast medewerker mee aan de wieg van G2architecten.
Zij is de spreekwoordelijke rechter hand. Ontwerpt en leidt projecten met een grote drang naar perfectionisme, is medeverantwoordelijk voor de goede werking van de kantoorvloer en het afleveren van smetteloze dossiers.
Gregory Gebruers
Studeerde in 1996 af aan het Henry Van De Velde Instituut te Antwerpen, waarna hij een specialisatie Monumenten en Landschapszorg volgde. Liep stage bij Gie Bresseleers en later bij Mys&Bomans architectuurkantoor waar hij tot 2003 vast medewerker bleef.
Een eigen praktijk werd uitgebouwd van 2003 tot 2007, wat vervolgens leidde tot de oprichting van bvba G2architecten eind 2007.
Heading
Lorem ipsum dolor sit amet, consectetur adipiscing elit. Suspendisse varius enim in eros elementum tristique. Duis cursus, mi quis viverra ornare, eros dolor interdum nulla, ut commodo diam libero vitae erat. Aenean faucibus nibh et justo cursus id rutrum lorem imperdiet. Nunc ut sem vitae risus tristique posuere.
Heading
Lorem ipsum dolor sit amet, consectetur adipiscing elit. Suspendisse varius enim in eros elementum tristique. Duis cursus, mi quis viverra ornare, eros dolor interdum nulla, ut commodo diam libero vitae erat. Aenean faucibus nibh et justo cursus id rutrum lorem imperdiet. Nunc ut sem vitae risus tristique posuere.
Heading
Lorem ipsum dolor sit amet, consectetur adipiscing elit. Suspendisse varius enim in eros elementum tristique. Duis cursus, mi quis viverra ornare, eros dolor interdum nulla, ut commodo diam libero vitae erat. Aenean faucibus nibh et justo cursus id rutrum lorem imperdiet. Nunc ut sem vitae risus tristique posuere.
Heading
Lorem ipsum dolor sit amet, consectetur adipiscing elit. Suspendisse varius enim in eros elementum tristique. Duis cursus, mi quis viverra ornare, eros dolor interdum nulla, ut commodo diam libero vitae erat. Aenean faucibus nibh et justo cursus id rutrum lorem imperdiet. Nunc ut sem vitae risus tristique posuere.
Heading
Lorem ipsum dolor sit amet, consectetur adipiscing elit. Suspendisse varius enim in eros elementum tristique. Duis cursus, mi quis viverra ornare, eros dolor interdum nulla, ut commodo diam libero vitae erat. Aenean faucibus nibh et justo cursus id rutrum lorem imperdiet. Nunc ut sem vitae risus tristique posuere.
Heading
Lorem ipsum dolor sit amet, consectetur adipiscing elit. Suspendisse varius enim in eros elementum tristique. Duis cursus, mi quis viverra ornare, eros dolor interdum nulla, ut commodo diam libero vitae erat. Aenean faucibus nibh et justo cursus id rutrum lorem imperdiet. Nunc ut sem vitae risus tristique posuere.
Heading
Lorem ipsum dolor sit amet, consectetur adipiscing elit. Suspendisse varius enim in eros elementum tristique. Duis cursus, mi quis viverra ornare, eros dolor interdum nulla, ut commodo diam libero vitae erat. Aenean faucibus nibh et justo cursus id rutrum lorem imperdiet. Nunc ut sem vitae risus tristique posuere.
Heading
Lorem ipsum dolor sit amet, consectetur adipiscing elit. Suspendisse varius enim in eros elementum tristique. Duis cursus, mi quis viverra ornare, eros dolor interdum nulla, ut commodo diam libero vitae erat. Aenean faucibus nibh et justo cursus id rutrum lorem imperdiet. Nunc ut sem vitae risus tristique posuere.
Heading
Lorem ipsum dolor sit amet, consectetur adipiscing elit. Suspendisse varius enim in eros elementum tristique. Duis cursus, mi quis viverra ornare, eros dolor interdum nulla, ut commodo diam libero vitae erat. Aenean faucibus nibh et justo cursus id rutrum lorem imperdiet. Nunc ut sem vitae risus tristique posuere.
Heading
Lorem ipsum dolor sit amet, consectetur adipiscing elit. Suspendisse varius enim in eros elementum tristique. Duis cursus, mi quis viverra ornare, eros dolor interdum nulla, ut commodo diam libero vitae erat. Aenean faucibus nibh et justo cursus id rutrum lorem imperdiet. Nunc ut sem vitae risus tristique posuere.



