ECO
In veel bedrijvenzones is het straatbeeld grauw en somber. De industriële gebouwen zijn er doorgaans inspiratieloze monolieten, hoewel architectuur kansen biedt om je als bedrijf sterker te profileren en medewerkers een comfortabele werkplek te bieden waar licht, zicht en beleving centraal staan.

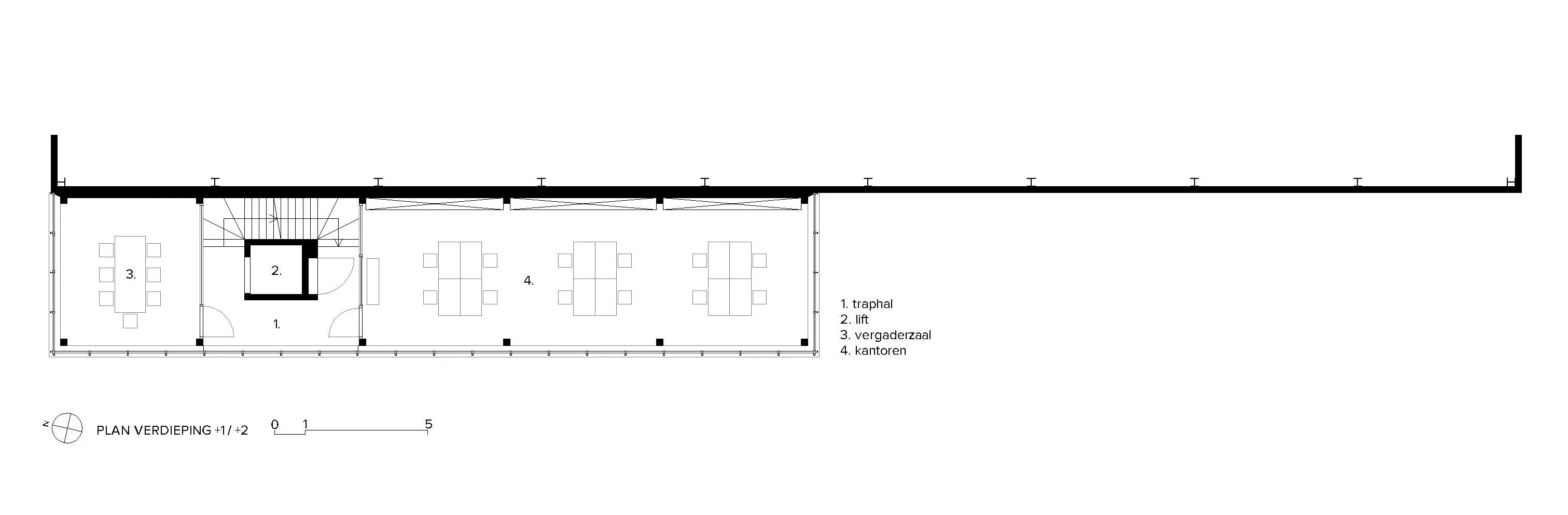
Het nieuwe kantoorgebouw van Eco-Modal is opgetrokken tegen een bestaande loods. Om aan te sluiten op de verhoogde laadkades, is het gebouw 1 meter boven het maaiveld getild. Zo ontstaat een hellend vlak richting inkom, waar bezoekers als het ware een architecturale wandeling maken. Verheven boven de parkeerzone is een royale eetzaal met terras voorzien.
Het gebouw presenteert zich als een baken van licht en ruimte, waar de economische principes van de industriebouw harmonieus samengaan met een meer ambachtelijke afwerking.
De opvallend open constructie is ontworpen vanuit het ruwbouw-afbouwprincipe: een aanpak die structurele elementen zoveel mogelijk zichtbaar laat, maar tegelijk ook een grote esthetische meerwaarde heeft. Gericht geplaatst maatmeubilair geeft warmte aan het interieur.
De gevels zijn opgebouwd uit glazen vlakken, verfijnd uitgevoerd in bronskleurig aluminium schrijnwerk, met een zonwerende lamellenstructuur die het binnenklimaat reguleert en het gebouw extra korrel geeft.
Architectuur en interieur zijn één verhaal. Die geïntegreerde aanpak zorgt ervoor dat zelfs de meest rudimentaire vragen leiden tot creatieve oplossingen. In de beglaasde houten scheidingswanden zit niet enkel een loket vervat, ze bakenen tevens de kantoorvloer af als brandcompartiment ten opzichte van de gemeenschappelijke circulatieruime: sociale interactie en eisen rond brandveiligheid worden verenigd.













Ontdek het volgende project
TRC
Victor Snyers
Studeerde in 2024 af aan de Universiteit van Antwerpen departement architectuur. Loopt nu stage bij G2architecten.
Anne-Lies Torfs
Studeerde in 1997 af aan het Henry Van De Velde Instituut te Antwerpen. Liep stage bij Jo Crepain Architects. Van 2000 tot 2021 was zij projectarchitect bij Christine von der Becke Architects en Nathalie Van Reeth Interieurarchitect.
Sinds 2022 medewerker bij G2architecten. Met ruime ervaring en bijzondere voeling voor interieur en fotografie ondertussen van onschatbare waarde.
Sarah D’Hooghe
Studeerde in 2006 af aan het Henry Van De Velde Instituut te Antwerpen. Liep stage bij Gregory Gebruers architect en stond later als vast medewerker mee aan de wieg van G2architecten.
Zij is de spreekwoordelijke rechter hand. Ontwerpt en leidt projecten met een grote drang naar perfectionisme, is medeverantwoordelijk voor de goede werking van de kantoorvloer en het afleveren van smetteloze dossiers.
Gregory Gebruers
Studeerde in 1996 af aan het Henry Van De Velde Instituut te Antwerpen, waarna hij een specialisatie Monumenten en Landschapszorg volgde. Liep stage bij Gie Bresseleers en later bij Mys&Bomans architectuurkantoor waar hij tot 2003 vast medewerker bleef.
Een eigen praktijk werd uitgebouwd van 2003 tot 2007, wat vervolgens leidde tot de oprichting van bvba G2architecten eind 2007.
Heading
Lorem ipsum dolor sit amet, consectetur adipiscing elit. Suspendisse varius enim in eros elementum tristique. Duis cursus, mi quis viverra ornare, eros dolor interdum nulla, ut commodo diam libero vitae erat. Aenean faucibus nibh et justo cursus id rutrum lorem imperdiet. Nunc ut sem vitae risus tristique posuere.
Heading
Lorem ipsum dolor sit amet, consectetur adipiscing elit. Suspendisse varius enim in eros elementum tristique. Duis cursus, mi quis viverra ornare, eros dolor interdum nulla, ut commodo diam libero vitae erat. Aenean faucibus nibh et justo cursus id rutrum lorem imperdiet. Nunc ut sem vitae risus tristique posuere.
Heading
Lorem ipsum dolor sit amet, consectetur adipiscing elit. Suspendisse varius enim in eros elementum tristique. Duis cursus, mi quis viverra ornare, eros dolor interdum nulla, ut commodo diam libero vitae erat. Aenean faucibus nibh et justo cursus id rutrum lorem imperdiet. Nunc ut sem vitae risus tristique posuere.
Heading
Lorem ipsum dolor sit amet, consectetur adipiscing elit. Suspendisse varius enim in eros elementum tristique. Duis cursus, mi quis viverra ornare, eros dolor interdum nulla, ut commodo diam libero vitae erat. Aenean faucibus nibh et justo cursus id rutrum lorem imperdiet. Nunc ut sem vitae risus tristique posuere.
Heading
Lorem ipsum dolor sit amet, consectetur adipiscing elit. Suspendisse varius enim in eros elementum tristique. Duis cursus, mi quis viverra ornare, eros dolor interdum nulla, ut commodo diam libero vitae erat. Aenean faucibus nibh et justo cursus id rutrum lorem imperdiet. Nunc ut sem vitae risus tristique posuere.
Heading
Lorem ipsum dolor sit amet, consectetur adipiscing elit. Suspendisse varius enim in eros elementum tristique. Duis cursus, mi quis viverra ornare, eros dolor interdum nulla, ut commodo diam libero vitae erat. Aenean faucibus nibh et justo cursus id rutrum lorem imperdiet. Nunc ut sem vitae risus tristique posuere.
Heading
Lorem ipsum dolor sit amet, consectetur adipiscing elit. Suspendisse varius enim in eros elementum tristique. Duis cursus, mi quis viverra ornare, eros dolor interdum nulla, ut commodo diam libero vitae erat. Aenean faucibus nibh et justo cursus id rutrum lorem imperdiet. Nunc ut sem vitae risus tristique posuere.
Heading
Lorem ipsum dolor sit amet, consectetur adipiscing elit. Suspendisse varius enim in eros elementum tristique. Duis cursus, mi quis viverra ornare, eros dolor interdum nulla, ut commodo diam libero vitae erat. Aenean faucibus nibh et justo cursus id rutrum lorem imperdiet. Nunc ut sem vitae risus tristique posuere.
Heading
Lorem ipsum dolor sit amet, consectetur adipiscing elit. Suspendisse varius enim in eros elementum tristique. Duis cursus, mi quis viverra ornare, eros dolor interdum nulla, ut commodo diam libero vitae erat. Aenean faucibus nibh et justo cursus id rutrum lorem imperdiet. Nunc ut sem vitae risus tristique posuere.
Heading
Lorem ipsum dolor sit amet, consectetur adipiscing elit. Suspendisse varius enim in eros elementum tristique. Duis cursus, mi quis viverra ornare, eros dolor interdum nulla, ut commodo diam libero vitae erat. Aenean faucibus nibh et justo cursus id rutrum lorem imperdiet. Nunc ut sem vitae risus tristique posuere.



