HOY
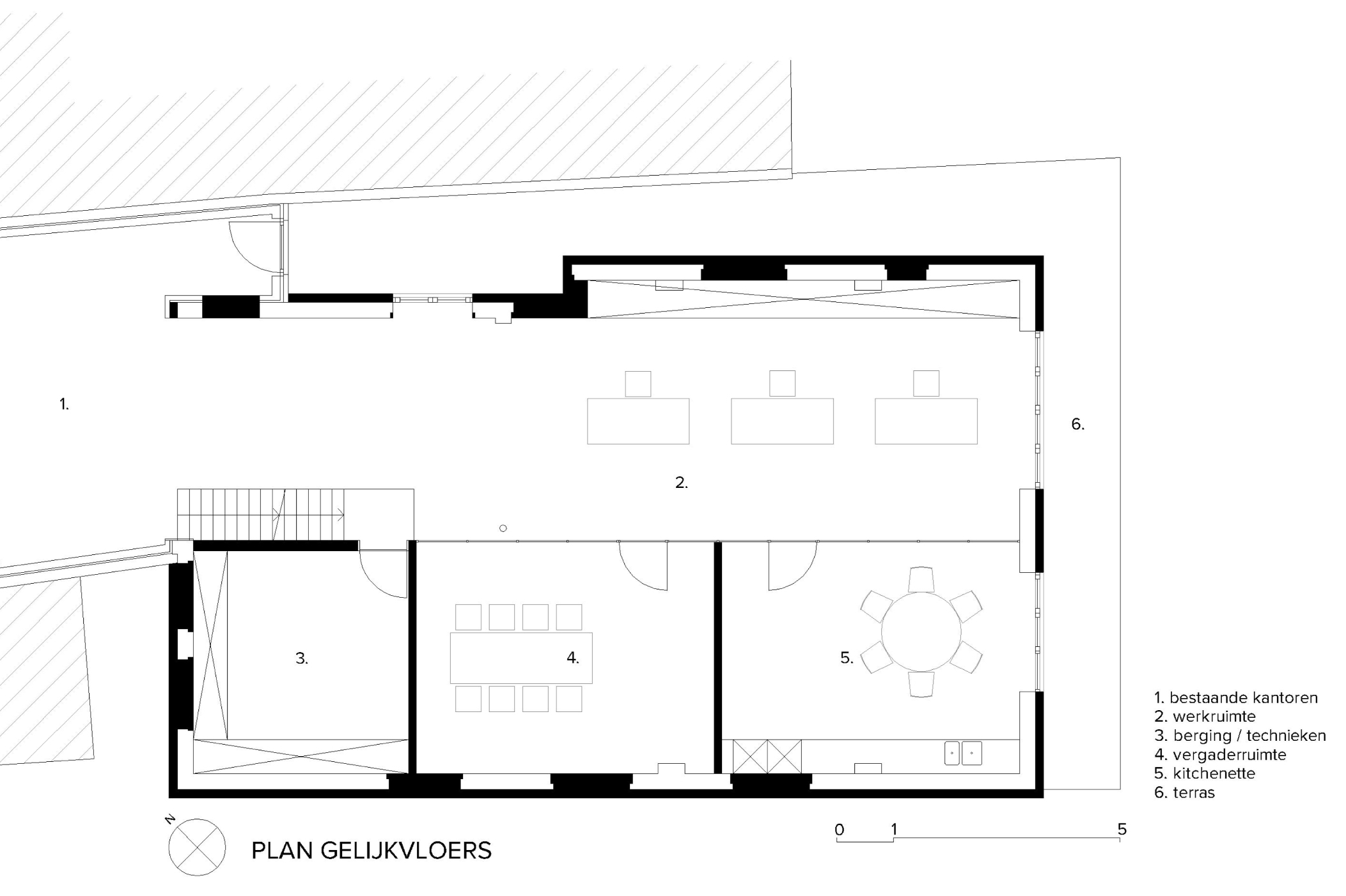
Een eeuwenoude stalling, gelegen in de dorpskern van Stekene, zit verscholen achter een nieuwbouwcomplex met appartementen en een immokantoor. Om de groei van het kantoor op te vangen werd onderzocht of het gebouw nog te redden viel of eerder plaats moest maken voor een nieuwbouw.

Erfgoed herbestemmen is niet enkel vanuit cultuurhistorisch of esthetisch oogpunt een te verdedigen keuze, het ligt bovendien in de lijn van een circulair gedachtengoed. Toen bleek dat structuur en dakgebinte intact waren, was deze keuze snel gemaakt.
Het oorspronkelijk bouwvolume is aan de buitenzijde voorzien van een nieuwe geïsoleerde gebouwschil waardoor binnenin het oude zichtmetselwerk en de prachtige spanten een prominente rol krijgen.
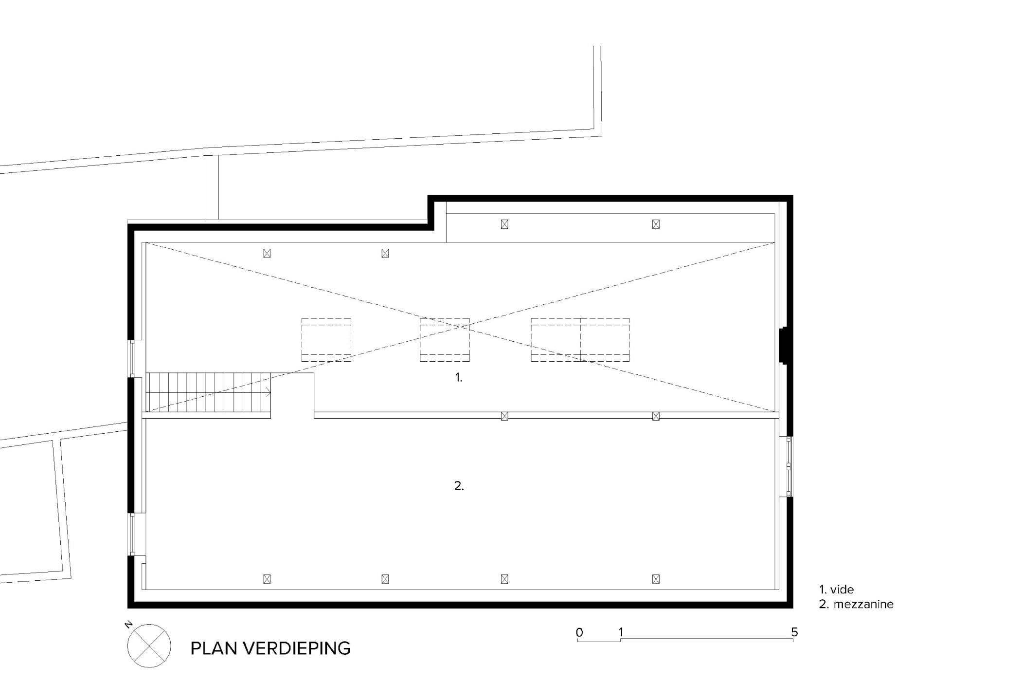
Door de helft van de verdiepingsvloer weg te nemen ontstaan ruimtelijke werkplekken naast een meer intieme vergaderruimte en kitchenette. Het stalen schrijnwerkgeheel deelt deze verschillende functies akoestisch op, met behoud van de gewenste doorzichten.
Detaillering en materialisatie is over de gehele lijn ambachtelijk uitgewerkt, waarbij een symbiose met de oorspronkelijke structuren ontstaat en het geheel volgens hedendaagse comforteisen wordt overgedragen aan de toekomstige gebruikers.











Ontdek het volgende project
VER
Victor Snyers
Studeerde in 2024 af aan de Universiteit van Antwerpen departement architectuur. Loopt nu stage bij G2architecten.
Anne-Lies Torfs
Studeerde in 1997 af aan het Henry Van De Velde Instituut te Antwerpen. Liep stage bij Jo Crepain Architects. Van 2000 tot 2021 was zij projectarchitect bij Christine von der Becke Architects en Nathalie Van Reeth Interieurarchitect.
Sinds 2022 medewerker bij G2architecten. Met ruime ervaring en bijzondere voeling voor interieur en fotografie ondertussen van onschatbare waarde.
Sarah D’Hooghe
Studeerde in 2006 af aan het Henry Van De Velde Instituut te Antwerpen. Liep stage bij Gregory Gebruers architect en stond later als vast medewerker mee aan de wieg van G2architecten.
Zij is de spreekwoordelijke rechter hand. Ontwerpt en leidt projecten met een grote drang naar perfectionisme, is medeverantwoordelijk voor de goede werking van de kantoorvloer en het afleveren van smetteloze dossiers.
Gregory Gebruers
Studeerde in 1996 af aan het Henry Van De Velde Instituut te Antwerpen, waarna hij een specialisatie Monumenten en Landschapszorg volgde. Liep stage bij Gie Bresseleers en later bij Mys&Bomans architectuurkantoor waar hij tot 2003 vast medewerker bleef.
Een eigen praktijk werd uitgebouwd van 2003 tot 2007, wat vervolgens leidde tot de oprichting van bvba G2architecten eind 2007.
Heading
Lorem ipsum dolor sit amet, consectetur adipiscing elit. Suspendisse varius enim in eros elementum tristique. Duis cursus, mi quis viverra ornare, eros dolor interdum nulla, ut commodo diam libero vitae erat. Aenean faucibus nibh et justo cursus id rutrum lorem imperdiet. Nunc ut sem vitae risus tristique posuere.
Heading
Lorem ipsum dolor sit amet, consectetur adipiscing elit. Suspendisse varius enim in eros elementum tristique. Duis cursus, mi quis viverra ornare, eros dolor interdum nulla, ut commodo diam libero vitae erat. Aenean faucibus nibh et justo cursus id rutrum lorem imperdiet. Nunc ut sem vitae risus tristique posuere.
Heading
Lorem ipsum dolor sit amet, consectetur adipiscing elit. Suspendisse varius enim in eros elementum tristique. Duis cursus, mi quis viverra ornare, eros dolor interdum nulla, ut commodo diam libero vitae erat. Aenean faucibus nibh et justo cursus id rutrum lorem imperdiet. Nunc ut sem vitae risus tristique posuere.
Heading
Lorem ipsum dolor sit amet, consectetur adipiscing elit. Suspendisse varius enim in eros elementum tristique. Duis cursus, mi quis viverra ornare, eros dolor interdum nulla, ut commodo diam libero vitae erat. Aenean faucibus nibh et justo cursus id rutrum lorem imperdiet. Nunc ut sem vitae risus tristique posuere.
Heading
Lorem ipsum dolor sit amet, consectetur adipiscing elit. Suspendisse varius enim in eros elementum tristique. Duis cursus, mi quis viverra ornare, eros dolor interdum nulla, ut commodo diam libero vitae erat. Aenean faucibus nibh et justo cursus id rutrum lorem imperdiet. Nunc ut sem vitae risus tristique posuere.
Heading
Lorem ipsum dolor sit amet, consectetur adipiscing elit. Suspendisse varius enim in eros elementum tristique. Duis cursus, mi quis viverra ornare, eros dolor interdum nulla, ut commodo diam libero vitae erat. Aenean faucibus nibh et justo cursus id rutrum lorem imperdiet. Nunc ut sem vitae risus tristique posuere.
Heading
Lorem ipsum dolor sit amet, consectetur adipiscing elit. Suspendisse varius enim in eros elementum tristique. Duis cursus, mi quis viverra ornare, eros dolor interdum nulla, ut commodo diam libero vitae erat. Aenean faucibus nibh et justo cursus id rutrum lorem imperdiet. Nunc ut sem vitae risus tristique posuere.
Heading
Lorem ipsum dolor sit amet, consectetur adipiscing elit. Suspendisse varius enim in eros elementum tristique. Duis cursus, mi quis viverra ornare, eros dolor interdum nulla, ut commodo diam libero vitae erat. Aenean faucibus nibh et justo cursus id rutrum lorem imperdiet. Nunc ut sem vitae risus tristique posuere.
Heading
Lorem ipsum dolor sit amet, consectetur adipiscing elit. Suspendisse varius enim in eros elementum tristique. Duis cursus, mi quis viverra ornare, eros dolor interdum nulla, ut commodo diam libero vitae erat. Aenean faucibus nibh et justo cursus id rutrum lorem imperdiet. Nunc ut sem vitae risus tristique posuere.
Heading
Lorem ipsum dolor sit amet, consectetur adipiscing elit. Suspendisse varius enim in eros elementum tristique. Duis cursus, mi quis viverra ornare, eros dolor interdum nulla, ut commodo diam libero vitae erat. Aenean faucibus nibh et justo cursus id rutrum lorem imperdiet. Nunc ut sem vitae risus tristique posuere.



