VAB
Sinds 2008 is G2architecten partner en adviseur van VAB nv. Onder dit mandaat worden verschillende interventies aan haar gebouwen uitgevoerd. Doorheen de jaren werd een mastervisie ontwikkeld voor de hoofdzetel in Zwijndrecht waar het bedrijf sinds de jaren ’70 gevestigd is.

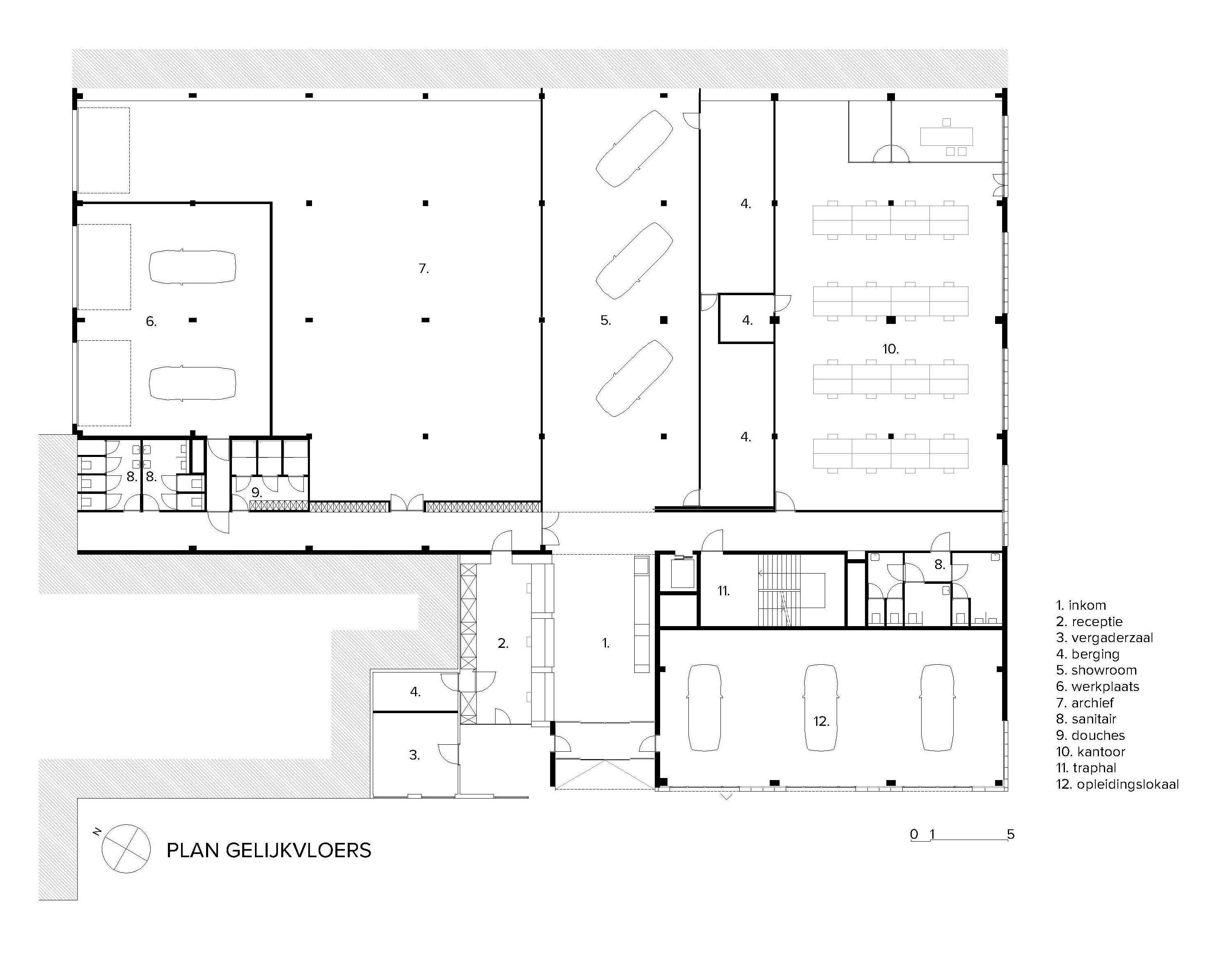
De oorspronkelijke industriehal met conciërgewoning is doorheen de jaren op een organische manier verbouwd en uitgebreid met kantoren wat leidde tot een wildgroei aan circulatiepatronen.
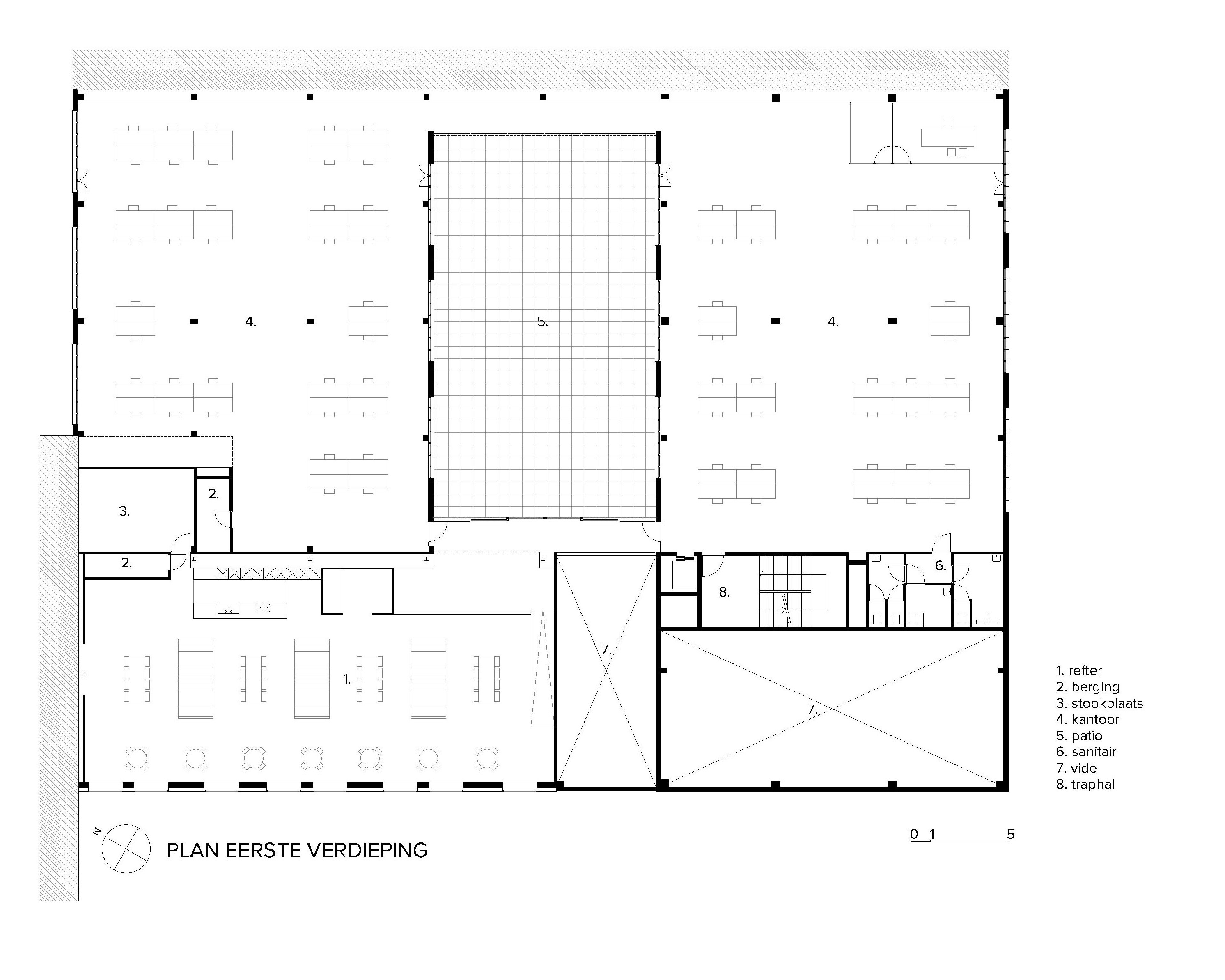
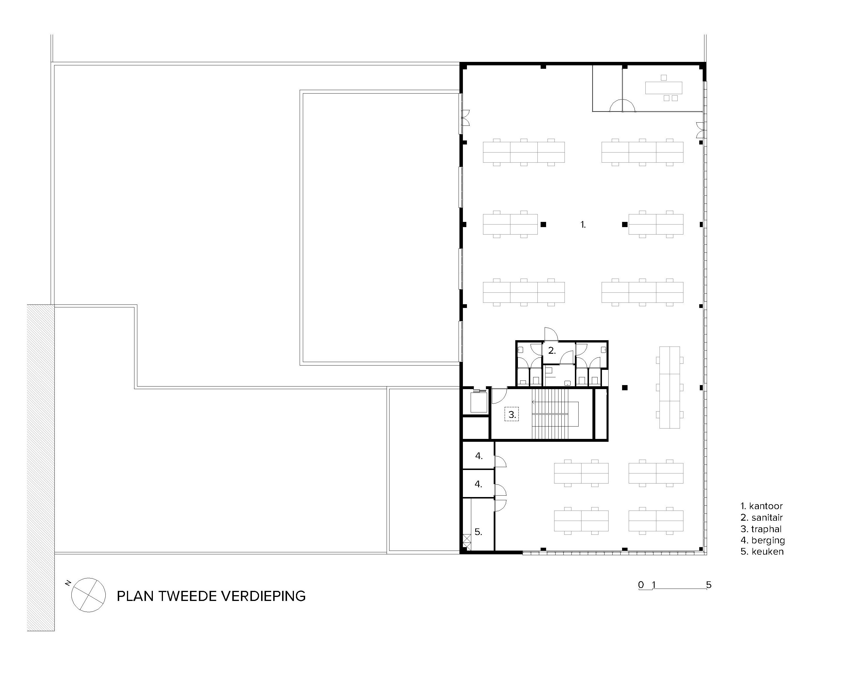
Het masterplan voorziet in de gedeeltelijke sloop van de industriehal die weinig efficiënt als opslagruimte gebruikt werd. Een nieuwbouw op dezelfde footprint, doch hoger gebouwd, voorziet in kwalitatieve kantoorvloeren, waarnaar de drukst bezette afdelingen kunnen verhuizen. 1000m2 extra kantoorruimte wordt gegenereerd rond een centrale patio op de eerste verdieping, waaraan de refter als polyvalente ontmoetingsruimte grenst. Alle openbare diensten worden bereikbaar gemaakt via één algemene toegang op de publieke as die leidt naar de minder bekende afdelingen van het bedrijf.
De receptie voorziet verschillende doorkijken in het gebouw, waardoor bezoekers zicht krijgen op de verschillende takken binnen VAB. De technische expertise wordt tentoongesteld via de vitrine van het opleidingslokaal. Een tweede private as voorziet de koppeling met de bestaande kantoorvloeren en de ontsluiting met hoger gelegen bouwlagen. Het plan is uitgewerkt op een raster van 60x60cm, de gestandaardiseerde maatvoering van de belangrijkste bouwcomponenten. Dit raster is doorgetrokken tot in de gevels, wat een flexibele en wisselende invulling van de kantoorvloeren mogelijk maakt.
Gevelmaterialen worden afgeleid uit het bestaande gebouwencomplex in een nieuwe interpretatie. Massief beton vergroot de thermische capaciteit van het interieur. Een lamellenstructuur verhindert opwarming op de zuidwest zijde en krijgt de kleuren uit het bestaande schrijnwerk en de silexgranulaten. Op die manier wordt een subtiel evenwicht bekomen tussen bestaande en nieuwe constructies; het nieuwe bouwblok integreert zich zonder een kopie te willen zijn van de bestaande toestand.













Ontdek het volgende project
VER
Victor Snyers
Studeerde in 2024 af aan de Universiteit van Antwerpen departement architectuur. Loopt nu stage bij G2architecten.
Anne-Lies Torfs
Studeerde in 1997 af aan het Henry Van De Velde Instituut te Antwerpen. Liep stage bij Jo Crepain Architects. Van 2000 tot 2021 was zij projectarchitect bij Christine von der Becke Architects en Nathalie Van Reeth Interieurarchitect.
Sinds 2022 medewerker bij G2architecten. Met ruime ervaring en bijzondere voeling voor interieur en fotografie ondertussen van onschatbare waarde.
Sarah D’Hooghe
Studeerde in 2006 af aan het Henry Van De Velde Instituut te Antwerpen. Liep stage bij Gregory Gebruers architect en stond later als vast medewerker mee aan de wieg van G2architecten.
Zij is de spreekwoordelijke rechter hand. Ontwerpt en leidt projecten met een grote drang naar perfectionisme, is medeverantwoordelijk voor de goede werking van de kantoorvloer en het afleveren van smetteloze dossiers.
Gregory Gebruers
Studeerde in 1996 af aan het Henry Van De Velde Instituut te Antwerpen, waarna hij een specialisatie Monumenten en Landschapszorg volgde. Liep stage bij Gie Bresseleers en later bij Mys&Bomans architectuurkantoor waar hij tot 2003 vast medewerker bleef.
Een eigen praktijk werd uitgebouwd van 2003 tot 2007, wat vervolgens leidde tot de oprichting van bvba G2architecten eind 2007.
Heading
Lorem ipsum dolor sit amet, consectetur adipiscing elit. Suspendisse varius enim in eros elementum tristique. Duis cursus, mi quis viverra ornare, eros dolor interdum nulla, ut commodo diam libero vitae erat. Aenean faucibus nibh et justo cursus id rutrum lorem imperdiet. Nunc ut sem vitae risus tristique posuere.
Heading
Lorem ipsum dolor sit amet, consectetur adipiscing elit. Suspendisse varius enim in eros elementum tristique. Duis cursus, mi quis viverra ornare, eros dolor interdum nulla, ut commodo diam libero vitae erat. Aenean faucibus nibh et justo cursus id rutrum lorem imperdiet. Nunc ut sem vitae risus tristique posuere.
Heading
Lorem ipsum dolor sit amet, consectetur adipiscing elit. Suspendisse varius enim in eros elementum tristique. Duis cursus, mi quis viverra ornare, eros dolor interdum nulla, ut commodo diam libero vitae erat. Aenean faucibus nibh et justo cursus id rutrum lorem imperdiet. Nunc ut sem vitae risus tristique posuere.
Heading
Lorem ipsum dolor sit amet, consectetur adipiscing elit. Suspendisse varius enim in eros elementum tristique. Duis cursus, mi quis viverra ornare, eros dolor interdum nulla, ut commodo diam libero vitae erat. Aenean faucibus nibh et justo cursus id rutrum lorem imperdiet. Nunc ut sem vitae risus tristique posuere.
Heading
Lorem ipsum dolor sit amet, consectetur adipiscing elit. Suspendisse varius enim in eros elementum tristique. Duis cursus, mi quis viverra ornare, eros dolor interdum nulla, ut commodo diam libero vitae erat. Aenean faucibus nibh et justo cursus id rutrum lorem imperdiet. Nunc ut sem vitae risus tristique posuere.
Heading
Lorem ipsum dolor sit amet, consectetur adipiscing elit. Suspendisse varius enim in eros elementum tristique. Duis cursus, mi quis viverra ornare, eros dolor interdum nulla, ut commodo diam libero vitae erat. Aenean faucibus nibh et justo cursus id rutrum lorem imperdiet. Nunc ut sem vitae risus tristique posuere.
Heading
Lorem ipsum dolor sit amet, consectetur adipiscing elit. Suspendisse varius enim in eros elementum tristique. Duis cursus, mi quis viverra ornare, eros dolor interdum nulla, ut commodo diam libero vitae erat. Aenean faucibus nibh et justo cursus id rutrum lorem imperdiet. Nunc ut sem vitae risus tristique posuere.
Heading
Lorem ipsum dolor sit amet, consectetur adipiscing elit. Suspendisse varius enim in eros elementum tristique. Duis cursus, mi quis viverra ornare, eros dolor interdum nulla, ut commodo diam libero vitae erat. Aenean faucibus nibh et justo cursus id rutrum lorem imperdiet. Nunc ut sem vitae risus tristique posuere.
Heading
Lorem ipsum dolor sit amet, consectetur adipiscing elit. Suspendisse varius enim in eros elementum tristique. Duis cursus, mi quis viverra ornare, eros dolor interdum nulla, ut commodo diam libero vitae erat. Aenean faucibus nibh et justo cursus id rutrum lorem imperdiet. Nunc ut sem vitae risus tristique posuere.
Heading
Lorem ipsum dolor sit amet, consectetur adipiscing elit. Suspendisse varius enim in eros elementum tristique. Duis cursus, mi quis viverra ornare, eros dolor interdum nulla, ut commodo diam libero vitae erat. Aenean faucibus nibh et justo cursus id rutrum lorem imperdiet. Nunc ut sem vitae risus tristique posuere.



