VER
Ontworpen door architect Renaat Braem en gebouwd in WOII; de Brouwerij van familie Verhofstede wordt na jaren van leegstand met het grootste respect voor zijn cultuurhistorische waarde en traditie verbouwd en opnieuw ingericht.

De renovatie van de oude bierbrouwerij tot stokerij is een huzarenstukje waar hedendaagse noden van de opdrachtgever, eisen van stedenbouw, onroerend erfgoed, brandweer en voedselveiligheid worden samengebracht in een nieuw coherent geheel. Beleving en het structureren van de stookprocessen staan hierin centraal.
Ad hoc verbouwingen uit het verleden worden verwijderd en kopgevels worden geopend. Hierdoor ontstaan een aantrekkelijke winkel met degustatieruimte aan de staatzijde en weidse uitzichten over de polders aan de achterzijde.
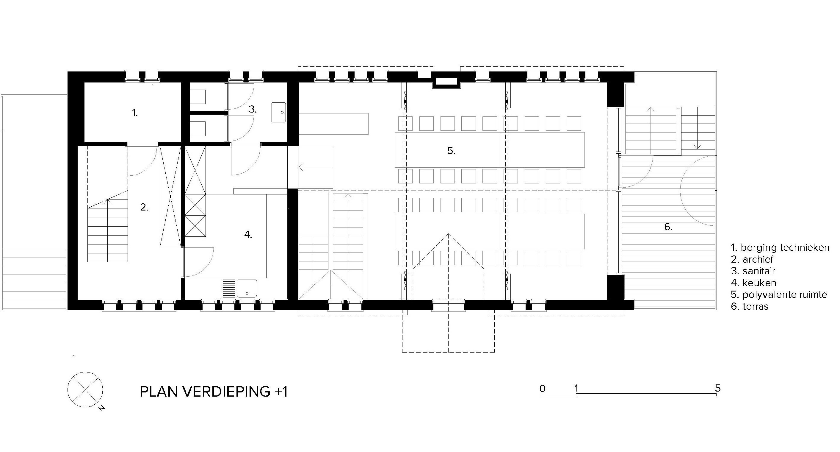
Er wordt een nieuwe logische flow voorzien die de verschillende niveaus met elkaar verbindt, met een helder en leesbaar geheel als doel. Stalen buitentrappen verzorgen de toegang tot het gebouw, dat van oorsprong nooit rechtstreeks aansloot op de begane grond.
Vanuit de winkel- en degustatieruimte wordt de productiefaciliteit met zijn prachtige koperen ketels zichtbaar. De distillatie- en maceratieprocessen lopen verder door in de kelderruimte waar het natuurlijk licht nu diep kan doordringen en het aangenaam werken is.
De hoger gelegen verdiepingen bieden plaats aan de backoffice, de vroegere kruidenzolder werd omgebouwd tot ontmoetingsplek met een terras en vergezichten tot over de omliggende velden.
Bestaande structuren worden geconserveerd en in ere hersteld. Nieuwe technieken worden als zichtwerk geïntegreerd, waardoor de flexibiliteit wordt behouden om ruimtes te herdefiniëren.
De 4e generatie brouwers krijgt met deze ingrepen alle ruimte om verder te groeien.

















Ontdek het volgende project
VAB
Victor Snyers
Studeerde in 2024 af aan de Universiteit van Antwerpen departement architectuur. Loopt nu stage bij G2architecten.
Anne-Lies Torfs
Studeerde in 1997 af aan het Henry Van De Velde Instituut te Antwerpen. Liep stage bij Jo Crepain Architects. Van 2000 tot 2021 was zij projectarchitect bij Christine von der Becke Architects en Nathalie Van Reeth Interieurarchitect.
Sinds 2022 medewerker bij G2architecten. Met ruime ervaring en bijzondere voeling voor interieur en fotografie ondertussen van onschatbare waarde.
Sarah D’Hooghe
Studeerde in 2006 af aan het Henry Van De Velde Instituut te Antwerpen. Liep stage bij Gregory Gebruers architect en stond later als vast medewerker mee aan de wieg van G2architecten.
Zij is de spreekwoordelijke rechter hand. Ontwerpt en leidt projecten met een grote drang naar perfectionisme, is medeverantwoordelijk voor de goede werking van de kantoorvloer en het afleveren van smetteloze dossiers.
Gregory Gebruers
Studeerde in 1996 af aan het Henry Van De Velde Instituut te Antwerpen, waarna hij een specialisatie Monumenten en Landschapszorg volgde. Liep stage bij Gie Bresseleers en later bij Mys&Bomans architectuurkantoor waar hij tot 2003 vast medewerker bleef.
Een eigen praktijk werd uitgebouwd van 2003 tot 2007, wat vervolgens leidde tot de oprichting van bvba G2architecten eind 2007.
Heading
Lorem ipsum dolor sit amet, consectetur adipiscing elit. Suspendisse varius enim in eros elementum tristique. Duis cursus, mi quis viverra ornare, eros dolor interdum nulla, ut commodo diam libero vitae erat. Aenean faucibus nibh et justo cursus id rutrum lorem imperdiet. Nunc ut sem vitae risus tristique posuere.
Heading
Lorem ipsum dolor sit amet, consectetur adipiscing elit. Suspendisse varius enim in eros elementum tristique. Duis cursus, mi quis viverra ornare, eros dolor interdum nulla, ut commodo diam libero vitae erat. Aenean faucibus nibh et justo cursus id rutrum lorem imperdiet. Nunc ut sem vitae risus tristique posuere.
Heading
Lorem ipsum dolor sit amet, consectetur adipiscing elit. Suspendisse varius enim in eros elementum tristique. Duis cursus, mi quis viverra ornare, eros dolor interdum nulla, ut commodo diam libero vitae erat. Aenean faucibus nibh et justo cursus id rutrum lorem imperdiet. Nunc ut sem vitae risus tristique posuere.
Heading
Lorem ipsum dolor sit amet, consectetur adipiscing elit. Suspendisse varius enim in eros elementum tristique. Duis cursus, mi quis viverra ornare, eros dolor interdum nulla, ut commodo diam libero vitae erat. Aenean faucibus nibh et justo cursus id rutrum lorem imperdiet. Nunc ut sem vitae risus tristique posuere.
Heading
Lorem ipsum dolor sit amet, consectetur adipiscing elit. Suspendisse varius enim in eros elementum tristique. Duis cursus, mi quis viverra ornare, eros dolor interdum nulla, ut commodo diam libero vitae erat. Aenean faucibus nibh et justo cursus id rutrum lorem imperdiet. Nunc ut sem vitae risus tristique posuere.
Heading
Lorem ipsum dolor sit amet, consectetur adipiscing elit. Suspendisse varius enim in eros elementum tristique. Duis cursus, mi quis viverra ornare, eros dolor interdum nulla, ut commodo diam libero vitae erat. Aenean faucibus nibh et justo cursus id rutrum lorem imperdiet. Nunc ut sem vitae risus tristique posuere.
Heading
Lorem ipsum dolor sit amet, consectetur adipiscing elit. Suspendisse varius enim in eros elementum tristique. Duis cursus, mi quis viverra ornare, eros dolor interdum nulla, ut commodo diam libero vitae erat. Aenean faucibus nibh et justo cursus id rutrum lorem imperdiet. Nunc ut sem vitae risus tristique posuere.
Heading
Lorem ipsum dolor sit amet, consectetur adipiscing elit. Suspendisse varius enim in eros elementum tristique. Duis cursus, mi quis viverra ornare, eros dolor interdum nulla, ut commodo diam libero vitae erat. Aenean faucibus nibh et justo cursus id rutrum lorem imperdiet. Nunc ut sem vitae risus tristique posuere.
Heading
Lorem ipsum dolor sit amet, consectetur adipiscing elit. Suspendisse varius enim in eros elementum tristique. Duis cursus, mi quis viverra ornare, eros dolor interdum nulla, ut commodo diam libero vitae erat. Aenean faucibus nibh et justo cursus id rutrum lorem imperdiet. Nunc ut sem vitae risus tristique posuere.
Heading
Lorem ipsum dolor sit amet, consectetur adipiscing elit. Suspendisse varius enim in eros elementum tristique. Duis cursus, mi quis viverra ornare, eros dolor interdum nulla, ut commodo diam libero vitae erat. Aenean faucibus nibh et justo cursus id rutrum lorem imperdiet. Nunc ut sem vitae risus tristique posuere.



